В Івано-Франківську напрацювали нову схему організації дорожнього руху на вулиці Грушевського. Проєкт має на меті впорядкувати транспортний потік, паркування та підвищити рівень безпеки для всіх учасників дорожнього руху.
Як повідомив Mykhailo Smushak, основний акцент зроблено на безпеці пішоходів, доступності міського простору та зручності для людей з інвалідністю.
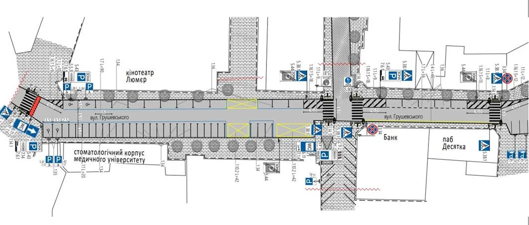
Що передбачає нова схема
Зокрема, проєктом заплановано:
- облаштування «антикишені» на перехресті з вулицею Вагилевича для покращення оглядовості та безпеки пішоходів;
- пониження бордюру в районі ресторану «Десятка» та дотримання нормативних відстаней від припаркованих автомобілів до пішохідних переходів;
- облаштування місць для завантаження та розвантаження транспорту, що важливо для численних закладів і бізнесів у центральній частині міста.




Дискусійні пропозиції
Окрім затверджених рішень, у міській раді ініціюють громадське обговорення низки додаткових пропозицій. Зокрема:
- обмеження руху транспорту у вихідні та святкові дні на ділянці від вулиці Галицької до вулиці Вагилевича;
- обмеження транзитного руху через центр міста — шляхом повного перекриття вулиці з перетворенням її на пішохідну зону або створення закритої паркувальної зони за прикладом вулиці Шевченка.
При цьому наголошується, що у разі запровадження закритої паркувальної зони вона має перебувати виключно в управлінні КП «Сервіс паркування», а не приватних операторів.
Міська влада закликає мешканців долучатися до обговорення та висловлювати свої пропозиції, адже громадська думка є важливою для ухвалення збалансованих рішень щодо розвитку міського простору.


















